Located along the Interstate 270 corridor aligned with the future Corridor Cities Transitway, Crown Farm is a first rate transit-oriented community. The site, encompassing approximately 180 acres, was one of the last remaining large developable parcels in Montgomery County, Maryland. The development includes residential, office and retail uses. We were commissioned to design the exterior facades of over 89,000 SF of commercial space in the first phase of the project, known as Downtown Crown.

By incorporating a mix of uses, a variety of building heights, and facades detailed with timeless building materials, Downtown Crown is designed to be reminiscent of a traditional urban neighborhood. Our designs draw from the building forms and uses found in a long-established urban settings.

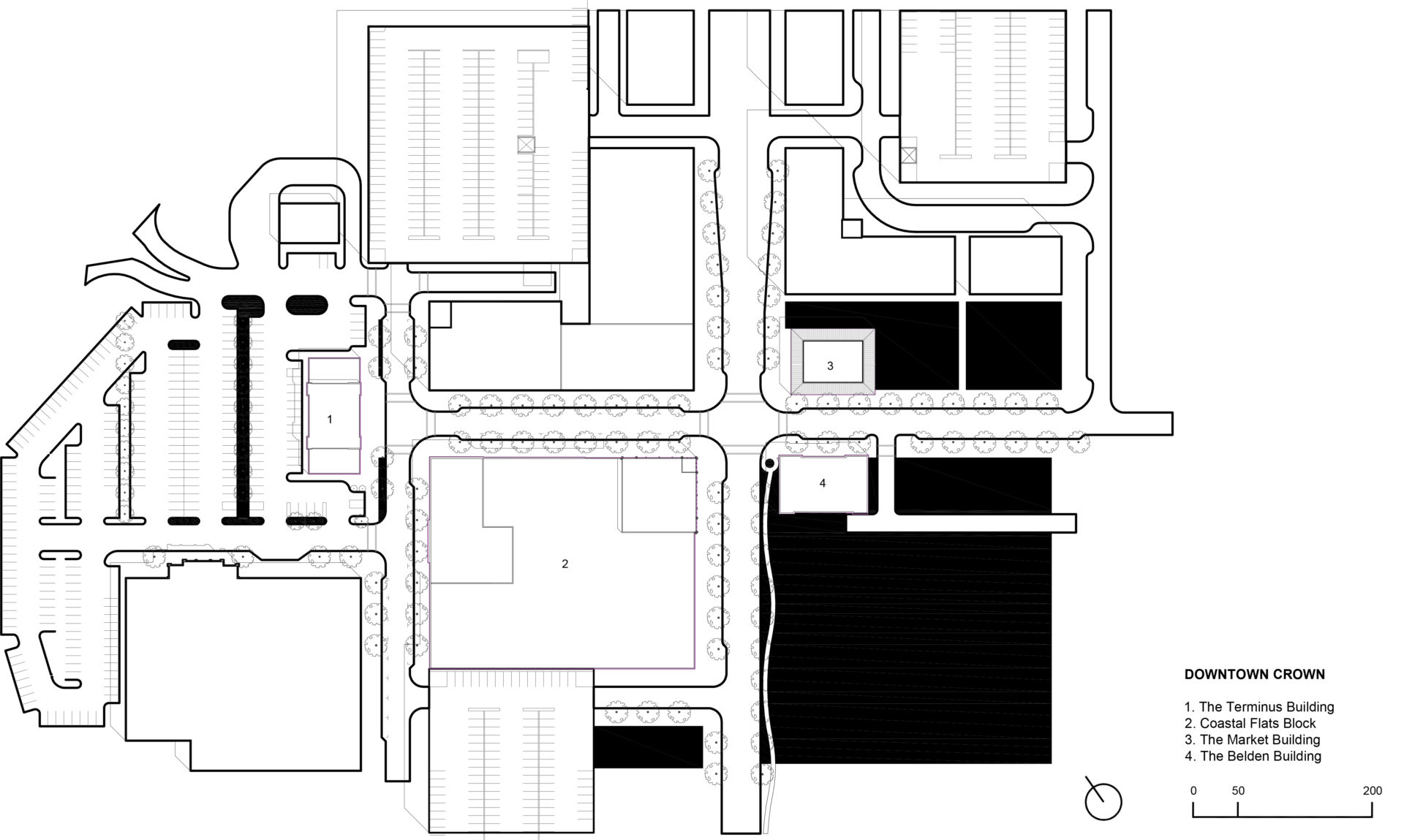
A repetitive, 20’ module is used to echo the narrow lot widths that have historically defined the American ‘Main Street’. Individual building facades are on a multiple of this dimension, which also functions as a flexible leasing module. A retail building, dubbed the terminus building, occupies a key site terminating Crown Park Avenue – Downtown Crown’s principal street. The terminus building’s design references pre-WWII, small-town civic building and provides a fitting focal point for the street and neighborhood.